Dobrá Lipa

Občianska vybavenosť

Dobrá Lipa

Wellness a kaviareň

Starý dom na novo

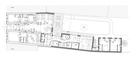
Rekonštrukcia pôvodného poľnohospodárskeho domu v historickom centre Vajnôr. Pôvodný dom je so svojimi hospodárskymi prístavbami spojený spoločným prestrešeným dvorom do jedného celku. Ďalšie priestory a funkcie sú vo dvornej prístavbe.

Vinohradnícky dom s hospodárskymi budovami pochádza približne z druhej polovice 19.storočia. Objekt sa nachádza v pamiatkovej zóne Vajnory. Cieľom investora bolo vhodným spôsobom zrekonštruovať objekt a zároveň prezentovať existujúce hodnotné prvky stavieb. Zmena funkcie z bývania na občiansku vybavenosť odráža dopyt obyvateľov mestskej časti a zároveň aj existujúci územný plán.

Časť objektu od ulice s klenbovými priestormi a pôvodnými pivnicami bola zjednotená skleneným prestrešením dvora. Sú tu prezentované pôvodné prvky stavby odhaľovaním konštrukcií a priestorovými priehľadmi na pôvodné budovy a do dvora. Pokračujúce pristavované časti objektu zachovávajú tvar a priestorové radenie na pozemku typické pre daný typ objektu.

Nové funkcie objektu kaviareň, saunový svet, krátkodobé ubytovanie, viacúčelová sála so záhradou prispievajú k bohatšej vybavenosti mestskej časti.